配电变压器,简称“配变”。指配电系统中根据电磁感应定律变换交流电压和电流而传输交流电能的一种静止电器。配电变压器通常是指运行在配电网中电压等级为10-35kV(大多数是10kV及以下)、容量为6300KVA及以下直接向终端用户供电的电力变压器。
配电变压器 ,简称“配变”,指配电系统中根据电磁感应定律变换交流电压和电流而传输交流电能的一种静止电器。有些地区将35千伏以下(大多数是10KV及以下)电压等级的电力变压器,称为“配电变压器”,简称“配变”。安装“配变”的场所与地方,既是变电所。配电变压器宜采用柱上安装或露天落地安装。
本次小编以油浸式配电变压器进行结构介绍,油浸式配电变压器按其结构可分为本体、储油柜、绝缘套管、分接开关、保护装置等。如下图
本体包含了铁心、绕组及绝缘油三部分,绕组是变压器的电路,铁心是变压器的磁路。二者构成变压器的核心即电磁部分。
铁心是变压器中主要的磁路部分。通常由含硅量较高、厚度为0.35或0.5mm、表面涂有绝缘漆的热轧或冷轧硅钢片叠装而成,铁心分为铁心柱和铁轭两部分,铁心柱套有绕组,铁轭闭合磁路之用。铁心结构的基本形式有心式和壳式两种。
绕组是变压器的电路部分,一般用绝缘扁铜线或圆铜线在绕线模上绕制而成。绕组套装在变压器铁心柱上,低压绕组在内层,高压绕组套装在低压绕组外层,低压绕组和铁芯之间、高压绕组和低压绕组之间,都用绝缘材料做成的套筒分开,以便于绝缘。
变压器油的成份是很复杂的,主要是由环烷烃、烷烃和芳香烃构成,在配电变压器中变压器油起两个作用:一是在变压器绕组与绕组、绕组与铁心及油箱之间起绝缘作用。二是变压器油受热后产生对流,对变压器铁心和绕组起散热作用。常用的变压器油有10号、25号和45号三种规格,其标号表示油在零下开始凝固时的温度,例如“25号”油表示这种油在零下25℃时开始凝固。应该根据当地的气候条件选择油的规格。
储油柜装在油箱的顶盖上。储油柜的体积是油箱体积的10%左右。在储油柜和油箱之间有管子连通。当变压器的体积随着油的温度变化而膨胀或缩小时,储油柜起着储油和补油的作用,保证铁芯和绕组浸在油内;同时由于装了储油柜,缩小了油和空气的接触面,减少了油的劣化速度。
储油柜侧面有油标,在玻璃管的旁边有油温在-30℃、+20℃和+40℃时的油面高度标准线,表示未投入运行的变压器应该达到的油面高度;标准线主要可以反映变压器在不同温度下运行时,油量是否充足。
储油柜上装着呼吸孔,使储油柜上部空间和大气相通。变压器油热胀冷缩时,储油柜上部的空气可以通过呼吸孔出入,油面可以上升或下降,防止油箱变形甚至损坏。
它是变压器箱外的主要绝缘装置,大部分变压器绝缘套管采用瓷质绝缘套管。变压器通过高、低压绝缘套管,把变压器高、低压绕组的引线从油箱内引至油箱外,使变压器绕组对地(外壳和铁心)绝缘,并且还是固定引线与外电路连接的主要部件。高压瓷套管比较高大,低压瓷套管比较矮小。
变压器高压绕组改变抽头的装置,调整分接位置,可以增加或减少一次绕组部分匝数,以改变电压比,使输出电压得到调整。变压器在退出运行,并从电网上断开后以手动变换分接开关位置的方式,而调整输出电压的称为无载调压。
气体继电器装于变压器油箱与储油柜连接管中间,与控制电路连通构成瓦斯保护装置。气体继电器上接点与轻瓦斯信号构成一个单独回路,气体继电器下接点连接外电路构成重瓦斯保护,重瓦斯动作使高压断路器跳闸并发出重瓦斯动作信号;
防暴管是变压器的一种安全保护装置,装于变压器大盖上面,防暴管与大气相通,故障时热量会使变压器油汽化,触动气体继电器发出报警信号或切断电源避免油箱爆裂。
当配电变压器容量在30KVA及以下时(含30KVA),一般采用单杆配电变压器台架。将配电变压器、高压跌落式熔断器和高压避雷器装在一根水泥杆上,杆身应向组装配电变压器的反方向倾斜13°-15°。
当配电变压器容量在50KVA~315KVA时一般采用双杆式配电变压器台。配电变压器台由一主杆水泥杆和另一根副助杆组成,主杆上装有高压跌落式熔断器及高压引下线,副杆上有二次反引线。双杆配电变压器台经单杆配电变压器坚固。
杆塔式安装的优点:占地少、四周不需围墙或遮栏,带电部分距地面高,不易发生事故。缺点:台架用钢材较多,造价较高。
台墩式是在变压器杆下面用砖石砌成0.5-1m的四方墩台,将变压器放在上面。一般安装315KVA以上的变压器。
台墩式安装的优点:造价低,便于维护检修。缺点:占地较多,周围要装设遮栏,小动物易爬到带电部分上去,易发生受外力破坏事故。
油浸式变压器依靠油作冷却介质、如油浸自冷、油浸风冷、油浸水冷、强迫油循环等。干式变压器依靠空气对流进行自然冷却或增加风机冷却,多用于高层建筑、高速收费站点用电及局部照明、电子线路等小容量变压器。
1) 非封闭型油浸式变压器:主要有S8、S9、S10等系列产品,在工矿企业、农业和民用建筑中广泛使用。
2) 封闭型油浸式变压器:主要有S9、S9-M、S10-M 等系列产品,多用于石油、化工行业中多油污、多化学物质的场所。
3) 密封型油浸式变压器:主要有BS9、S9- 、S10- 、S11-MR、SH、SH12-M等系列产品,可做工矿企业、农业、民用建筑等各种场所配电之用。
1) 包封线圈式干式变压器:主要有SCB8、SC(B)9、SC(B)10、SCR-10 等系列产品,适用于高层建筑、商业中心、机场、车站、地铁、医院、工厂等场所。
2) 非包封线圈干式变压器:主要有SG10 等系列产品,适用于高层建筑、商业中心、机场、车站、地铁、石油化工等场所。
所谓无载调压和有载调压都是指的变压器分接开关调压方式。区别在于无载调压开关不具备带负载转换档位的能力,调档时必须使变压器停电。而有载分接开关则可带负荷切换档位。
单相变压器单相变压器即一次绕组和二次绕组均为单相绕组的变压器。单相变压器结构简单、体积小、损耗低,主要是铁损小,适宜在负荷密度较小的低压配电网中应用和推广。
三相变压器用于三相系统的升、降电压。三相变压器,一般初级有三个绕组,其接法分为三角形和星形、延边三角形等,三个绕组上的电压相位互差120度,也就是常见的三相380伏接线方式,其铁芯传统的是三相三芯柱、三相五芯柱、渐开线. 工作原理
铁心的作用是加强两个线圈间的磁耦合。为了减少铁内涡流和磁滞损耗,铁心由涂漆的硅钢片叠压而成;两个线圈之间没有电的联系,线圈由绝缘铜线(或铝线)绕成。一个线圈接交流电源称为初级线圈(或原线圈),另一个线圈接用电器称为次级线圈(或副线圈)。实际的变压器是很复杂的,不可避免地存在铜损(线圈电阻发热)、铁损(铁心发热)和漏磁(经空气闭合的磁感应线)等,为了简化讨论这里只介绍理想变压器。理想变压器成立的条件是:忽略漏磁通,忽略原、副线圈的电阻,忽略铁心的损耗,忽略空载电流(副线圈开路原线圈线圈中的电流)。例如电力变压器在满载运行时(副线圈输出额定功率)即接近理想变压器情况。
变压器是利用电磁感应原理制成的静止用电器。当变压器的原线圈接在交流电源上时,铁心中便产生交变磁通,交变磁通用φ表示。原、副线圈中的φ是相同的,φ也是简谐函数,表为φ=φmsinωt。由法拉第电磁感应定律可知,原、副线圈中的感应电动势为
1=-N1dφ/dt、e2=-N2dφ/dt。式中N1、N2为原、副线圈的匝数。由图可知U1=-e1,U2=e2(原线表示,副线表示),其复有效值为U1=-E1=jN1ωΦ、U2=E2=-jN2ωΦ,令k=N1/N2,称变压器的变比。由上式可得U1/ U2=-N1/N2=-k,即变压器原、副线圈电压有效值之比,等于其匝数比而且原、副线圈电压的位相差为π。进而得出:
指单相或三相变压器出线端子之间施加的电压值。用U N 表示,单位为KV或V。一次额定电压用U N1 表示,二次额定电压用U N2 表示。额定电流
指在额定容量和允许温升条件下,通过变压器一、二次绕组出线端子的电流,用I N 表示,单位KA或A。一次绕组电流用I N1 表示,二次绕组电流用IU N21 表示。额定频率
空载损耗也叫铁损,指当以额定频率的宝宝电压施加于一侧绕组的端子上,别一侧绕组出线开路时,变压器所吸取的有功功率,用P0表示,单位为W或KW。空载损耗主要为铁芯中磁滞损耗和涡流损耗,其值大小与铁芯材质、制作工艺密切相关,一般认为一台变压器的空载损耗不会随负荷大小的变化而变化。空载电流
变压器次级开路时,初级仍有一定的电流,这部分电流称为空载电流。空载电流由磁化电流(产生磁通)和铁损电流(由铁芯损耗引起)组成。对于50Hz电源变压器而言,空载电流基本上等于磁化电流。用I0 表示。通常用空载电流占额定电流的百分数表示,即
负载损耗也叫短路损耗、铜损,是指当带分接的绕组接在其主分接位置上并接入额定频率的电压,另一侧绕组的出线端子短路,流过绕组出线端子的电流为额定电流时,变压器所消耗的有功功率,用P K 表示。单位为W或KW。负载损耗的大小取决于绕组的材质等,运行中的负载损耗大小随负荷的变化而变化。
表示变压器各线圈之间、各线圈与铁芯之间的绝缘性能。绝缘电阻的高低与所使用的绝缘材料的性能、温度高低和潮湿程度有关.阻抗电压(%)
把变压器的二次绕组短路,在一次绕组慢慢升高电压,当二次绕组的短路电流等于额定值时,此时一次侧所施加的电压.一般以额定电压的百分数表示.相数
根据变压器一、二次绕组的相位关系,把变压器绕组连接成各种不同的组合,称为绕组的联结组。为了区别不同的联结组,常采用时钟表示法,即把高压侧线电压的相量作为时钟的长针,固定在12上,低压侧线电压的相量作为时钟的短针,看短针指在哪一个数字上,就作为该联结组的标号.如Dyn11表示一次绕组是(三角形)联结,二次绕组是带有中心点的(星形)联结,组号为(11)点。5. 产品型号
配电变压器为工矿企业与民用建筑供配电系统中的重要设备之一,它将10(6)kV或35kV网络电压降至用户使用的230/400V 母线电压。此类产品适用于交流50(60)Hz,三相最大额定容量2500kVA(单相最大额定容量833kVA,一般不推荐使用单相变压器),可在户内(外)使用,容量在315kVA 及以下时可安装在杆上,环境温度不高于40℃,不低于-25℃,最高日平均温度30℃,最高年平均温度20℃,相对湿度不超过90%(环境温度25℃),海拔高度不超过1000m。
干式变压器广泛用于局部照明、高层建筑 、机场,码头CNC机械设备等场所,简单的说干式变压器就是指铁芯和绕组不浸渍在绝缘油中的变压器。冷却方式分为自然空气冷却(AN)和强迫空气冷却(AF)。自然空冷时,变压器可在额定容量下长期连续运行。强迫风冷时,变压器输出容量可提高50%。适用于断续过负荷运行,或应急事故过负荷运行;由于过负荷时负载损耗和阻抗电压增幅较大,处于非经济运行状态,故不应使其处于长时间连续过负荷运行。
箱式变电站,又叫预装式变电所或预装式变电站。是一种高压开关设备、配电变压器和低压配电装置,按一定接线方案排成一体的工厂预制户内、户外紧凑式配电设备,即将变压器降压、低压配电等功能有机地组合在一起,安装在一个防潮、防锈、防尘、防鼠、防火、防盗、隔热、全封闭、可移动的钢结构箱,特别适用于城网建设与改造,是继土建变电站之后崛起的一种崭新的变电站。箱式变电站适用于矿山、工厂企业、油气田和风力发电站,它替代了原有的土建配电房,配电站,成为新型的成套变配电装置。近年来,低压供电的负荷密度不断增大,对供电的可靠性和质量也提出了很高的要求。在这种情况下,如果以某一较大容量的变电所为中心,以低压向周围的用户供电,将耗费大量的有色金属,电能损耗很大,还不能保证供电质量。反之,如果以高电压深入负荷中心,在负荷中心建变电所,就能缩短低压供电半径,提高供电质量,节约有色金属,降低电能损耗。在负荷中心最适宜建设箱式变电所。
高压/低压预装箱式变电站(所)也称为箱式变电所或组合式变电所(组合箱式变电站)、成套变电站、可移动变电站,产生于二十世纪七十年代,国内已有若干厂家生产。其构造大体上是一个箱式结构,设有高压开关小室、变压器小室及低压配出开关小室三个部分,额定电压为10、35kV,可安装1600kVA及以下变压器。其特点是:占地面积小;工厂化生产、速度快、质量好;施工速度快,仅需现场施工基础部分;外形美观,能与住宅小区环境协调一致;适应性强,具有互换性,便于标准化、系列化;维护工作量小,节约投资。
因此,箱式变电所无论国外、国内都受到重视与欢迎,可得到普遍地应用,是非常有前景的电气设备,已被广泛用于工厂、矿山、油田、港口、机场、车站、城市公共建筑、集中住宅区、机关单位、学校、商业大厅和地下设施等场所。
目前,国内各种不同型号的组合式变电站品种很多,其中包括户外式、户内式、全封闭型、半封闭型,带走廊型、不带走廊型,组合式、固定式、装置式,干式变压器、油浸变压器,终端供电、环网供电等,可适应不同用户的需要。高压、变压器、低压三室的布置方式为目字形排列或品字形分隔方案。高压室设备元件选用引进、国产或进口的环网柜、负荷开关加限流熔断器、真空断路器。低压室由动力、照明、计量及无功补偿柜构成。通风散热设有风扇、温度自动控制器、防凝露控制器。箱壳大都采用普通或热镀锌钢板、铝合金板,骨架用成型钢焊接或用螺栓连接。
箱变型式可分为欧式、美式和一体化式。欧式箱变是将变压器作为一个单独部件,集高压柜、变压器、低压柜三位一体,按一定的接线方案组合在一个或几个箱体而构成紧凑型成套配电装置。箱体有两种构成方式,即“目”字形布置和“品”字形布置。“目”字形布置的高低压室较宽,便于实现环网或双电源接线的环网供电方案。
欧式箱变的高压室一般是由高压负荷开关、高压熔断器和避雷器等组成的,可以进行停送电操作并且有过负荷和短路保护。低压室由低压空气开关、电流互感器、电流表、电压表等组成的。变压器一般采用 S9 或干式的等。
美式箱式组合变压器,其结构分为前后两部分,前部为接线柜,接线柜内包括高低压端子、高压负荷开关、插入式熔断器、高压分接开关操作手柄、油位表、油温计等;后部是油箱体及散热片,变压器绕组、铁心、高压负荷开关、插入式熔断器都在油箱体内。箱体采用全密封结构。一体化箱变为最近国内厂家研制,应用还不广泛,为双层结构,高、低压室置于变压器室上面。
欧式、美式和一体化式箱变各有优缺点,欧式箱变的体积较大,高低压开关和变压器都设于一个大壳体内,散热条件差,需装机械排风装置。美式箱变由于变压器冷却片直接对外散热,散热条件相对较好,但其造型较欧式差,其外观难与住宅小区等绿化环境配合。一体化箱变占地更少,优、缺点与美式箱变相似。另外,美式、一体化式箱变现国内只能制造630kVA容量以下的,欧式箱变却可达1250kVA。
箱式变电站结构与各种接线设备所需空间有关。环网、终端供电线路方案,设计有封闭、半封闭两大类,高低设备室分为带操作走廊和不带操作走廊式结构,可满足六种负荷开关、真空开关等任意组合的需要。高压室、变压器室、低压室为一字形排列,根据运输的要求设计有整体式和分单元拆装式两种。箱体采用钢板夹层(可填充石棉)和复合板两种,顶盖喷涂彩砂乳胶。箱体具有防雨性能。为监视、检修、更换设备需要设计通用门,即可双扇开启也可单扇开启,变压器室设有两侧开门的结构。变压器小室有供变压器移动用的轨道(外壳明显处设置铭牌和危险标志)。
变电站的高低压侧均应装门,且有足够的尺寸,门向外拉,门上有把手、锁、暗闩,门的开启角度不小于90°,门的开启有相应的连锁。高压侧满足“五防”的要求。不带电情况,门开启后有可靠的接地装置,在无电压信号指示时,方能对带电部分进行检修。高低压侧门打开后,有照明装置,确保操作检修的安全。
外壳有通风孔和隔热措施,必要时可采用散热措施,防止内部温度过高。高低压开关设备小室内的空气温度应不致引起各元件的温度超过相应标准的要求。同时还采取措施保证温度急剧变化时,内部无结露现象发生。当有通风口时,应有滤尘装置。
箱式变电所高压受电设备采用高压负荷开关串接熔断器的方案,这种方案目前在国外城网配电领域里得到了广泛的应用,特别是作为箱式变电所高压受电保护方案尤为适宜。这主要是由于:
(1)这种保护方案基本能满足大多数箱式变电所使用场合的负荷情况,既能控制、分断正常负荷电流,又能承受和保护短路故障。
(4)成本大大降低。断路器成本通常为相同额定参数负荷开关的2~3倍,采用高压负荷开关串接熔断器代替断路器突出了箱式站的自身特点,增加了与土建变电所的竞争能力。
箱式变电所10kv配电装置常用负荷开关加熔断器和环网供电装置,从邻近架空线连接到变压器高压端。进线方式可采用电缆线或架空绝缘线。作为公用箱式变电所时,箱式变电所的低压出线视变压器容量而定,一般不超过4回,最多不超过6回,也可以一回总出线,到临近的配电室再进行分支供电。作为独立用户用箱式变电所时,可以采用一回路供电。
干箱式变电所的过电压保护,目前大多数箱式变电所内都装有避雷器,作为站内变压器和其他高压受电设备的过电压保护。
国内箱式变电所变压器低压侧主开关大致采用DZl0、DWl0、DWl5型3种自动开关,低压侧支路上采用的电器,大致有BM、BT系列熔断器和DZ、DW系列自动开关。在箱式变电所变压器容量为200~630kVA时,采用DWl0或DWl5作为低压主开关。当容量超过800kVA时,应尽量选用DWl5开关。
美式箱式变是将变压器、负荷开关、保护用熔断器等设备统一设计,变压器的绕组和铁芯、高压负荷开关及保护用熔断器都在同一充满油的箱体内,没有相对独立的高低压开关柜。箱体为全密封结构,采用隐蔽式高强度螺栓及硅胶来密封箱盖;而低压室另外独立设置于油箱外。美式箱式变分为前、后两个部分,前面为高、低压操作间隔,操作间隔内包括有高低压套管、负荷开关、无载调压分接开关、插入式熔断器、压力释放阀、温度计、油位计、注油孔、放油阀等;后部为箱体及散热片。欧式箱式变(预装式变电站)是将高压开关设备、配电变压器和低压配电装置放置在三个不同的隔室内,通过电缆或母线来实现电气连接的设备。高低压开关柜相对独立紧凑组合并与变压器预装在可以吊装运输的箱体内,变压器室、高压室及低压室都装有独立的门,因而其体积比美式箱式变较大。
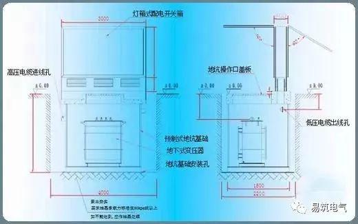
地埋式变压器是一种将变压器、高压负荷开关和保护熔断器等安装在油箱之中的紧凑形组合式配电设施,安装时置于地坑之中。它具有不占用空间、可以在一定时间内浸没在水中运行、免维护等特点,有利于节约城市配电设施占地面积,因此在城网改造和建设中有广泛的应用前景。
随着城乡现代化建设进程的加快,城市的建设已步入旨在改善街景市貌的都市美容阶段。传统的箱式变电站错落无序地挤占闹市的黄金地面,与优美的城市环境显得格格不入。城市规划、高速公路、公共设施的建设对电力设备的要求越来越高,在欧、美、日等发达国家,已按照城市生态设计理念,逐步将变压器埋入地下安装。地埋式箱变就是为了满足上述领域的要求而设计开发的全新的一种电力成套设备。地埋式箱变主要由地埋式变压器和广告灯箱式的户外开关设备组成。地埋式变压器是由变压器、高压负荷开关、熔断器等组合在一起的一种新型的紧凑型的变电设备,它安装在地坑中,不占用地表空间,而且能在一段时间内浸没在水中运行。广告灯箱式的户外开关设备为集广告牌及户外开关设备与一体的混合结构,安装在地面。箱体内部为户外高低压配电柜,两侧为广告灯箱,具有极佳的视觉效果。地埋式箱变符合城市生态设计理念,占地面积小,美化环境,适用于城市交通主干道、住宅小区、机场、车站、高速公路等场所。将成为城市配网设备的改造趋势
地埋式箱变主要由地埋式变压器和箱式户外开关设备组成。地埋式变压器是由变压器、高压负荷开关、熔断器等组合在一起的一种新型的紧凑型的变电设备,它安装在地坑中,不占用地表空间,而且能在一段时间内浸没在水中运行。箱式户外开关设备为户外开关设备为一体的混合结构,安装在地面。箱体内部为户外高低压配电柜,具有占地少、不影响地面建筑设施等。
地埋式箱变采用的地下式组合变压器具有以下特点:(1)箱体采用不锈钢制作、全密封,防护等级达IP68,可浸入水中运行。
地埋式箱变的地坑基础在工厂预制,预制的地坑基础具有以下特点:(1)地坑基础可采用6mm以上钢板预压成型,全密封结构,确保地表水及其它杂物不能进入地坑内:也可采用预制式钢筋混凝土结构,采用先进的防水技术处理,确保基础不渗漏,
(1)开关设备的保护外壳采用箱式结构,外壳的两门可全角度打开,并有气动弹簧支撑定位,便于开关设备的操作和维护。
地埋式箱变的地下式组合变压器虽然允许浸没在水中运行,但为了地下式变压器的长期安全可靠运行,地坑基础内的防水及排水必须进行周全的考虑和设计。对于地下水位较低(低于地坑基础底部)的地区,采用预制式地坑结构,地坑顶部通风孔具备有效的通风和防雨能力,地坑基础底部铺设走水砂卵石,水可以直接渗入地下,对于地下水位较高(高于地坑基础底部)的地区,采用预制全封闭混凝土地坑结构,防止地表水流入及地下水渗入地坑内。
地埋式箱变主要从以下几个方面保证地下式变压器的温升和散热:(1)地下式变压器采用S11系列低损耗产品或非晶合金铁心的产品,空载损耗及负载损耗都有很大程度的降低,所以发热量低。
(3)在配电箱与基础地坑之间,设置了进风及出风风机,当地下式组合变压器的温升达到设定值时进行强送/排风降温,保证地下式变压器的正常进行。
地埋式箱变所选用的地埋式变压器箱体外壳采用防腐不锈钢制作,全密封,高低压进出线采用防水全密封、全绝缘、全屏蔽的接线方式。保证了地埋式变压器的防腐和密封能力,整体防护等级达到IP68,可短时浸没在水中运行。高压配置插入式和后备熔断器,在变压器发生故障时,可迅速切断,不影响整体线路。
变压器地坑基础设计和制作时进行了防水及排水考虑,顶部通风孔具备有效的防雨防水功能,侧部及底部用特种防水材料处理,渗水不能侵入,在底部安装有受自动地埋式箱变可以浸没在水中运行,可抵御洪涝灾害,所有各项措施保证地埋变20年的使用寿命,可以免维护、免检修,有效提高了供电系统的可靠性。
地埋式箱变可通过采用GPRS无线网络技术的地下式变压器综合操控装置,向控制中心或设备管理人员报告地下式组合变压器和低压设备的运行状况,还可以实现遥远控制以及对高压断路器实行电操,极大的方便了对地下式组合变压器的操控和使用。8.4.3 与普通箱变的比较
一般的箱变占地面积较大,难以很好地与环境协调。特别是在一些高档的生活小区新建道路,杂处在小区和道路上的配电设施或箱式变电站不能与小区和道路环境相协调,影响到小区和道路整体的美观,甚至会影响到道路的市容景观。而地埋式箱变因为变压器安装在地下,不影响周围环境,安装在地面的配电箱体积小,很容易与周围环境相协调。如在生活小区里,地面的配电箱可以与小区绿化配套,成为小区景致的一部分。地面上的配电箱同时可以设计成广告灯箱。
变压器、高压跌落式熔断器和高压避雷器装在同一根电杆上。结构简单,安装方便,用料少,占地少,适用于安装50KVA以下的配电变压器.
由高压线终端电杆和另一根副杆(长约7.5M)组成。比单柱式坚固,可安装63-315KVA的配电变压器露天落地安装变压器直接放在高度不低于2.5M砖石垒成的台(墩)上。拆装变压器方便,变压器容量不受限制。
1)变压器底座距地面不应小于2.5m,所有的铁件要接地。2)裸露导电部分距地面的高度应在3.5m以上。
4)变压器的上引线和下引线均应采用多股绝缘线。高压跌落式熔断器距地面不应小于4m,高压熔断器中间相与边相距离不应小于0.5m,高压熔断器的瓷件中心线) 应悬挂“禁止攀登,高压危险!”的警告牌。
1) 落地式变压器的基础应高出地面0.2m,如在积水地区,变压器周围应设在排水沟道;变压器四周设置砖石围墙,其围墙高度不低于1.8m,围墙的门应采用耐火材料制成,且设计在变压器低压侧一方,门应向外开,并在门上装锁。不宜采用竹、木围栏。
5)压器距可燃性建筑物的距离不应小于5m,距耐火建筑物的距离不应小于3m。6)在围墙或台(墩)上,悬挂“止步,高压危险”的警告牌。
2)变压器室的耐火等级应为一级。3)压器外廓距后墙壁、侧墙壁净距不应小于0.6m,距门净距不应小于0.8m;变压器室的门窗均应向外开,且门窗的下方应有百叶窗。
声明:本文由入驻搜狐公众平台的作者撰写,除搜狐官方账号外,观点仅代表作者本人,不代表搜狐立场。

