新房装修,除了文艺小清新的北欧风,其实现代简约风也是挺受欢迎的。今天就为大家介绍一套90㎡现代简约风,设计非常的时尚,一进玄关,就被它的嵌入式收纳柜吸引住了。客厅背景墙大量留白,硬装时尚,软装温馨,很有家的味道。餐厅还有镜面设计,扩容效果真心棒!卧室色彩搭配就比较丰富了,暖暖的很舒适。
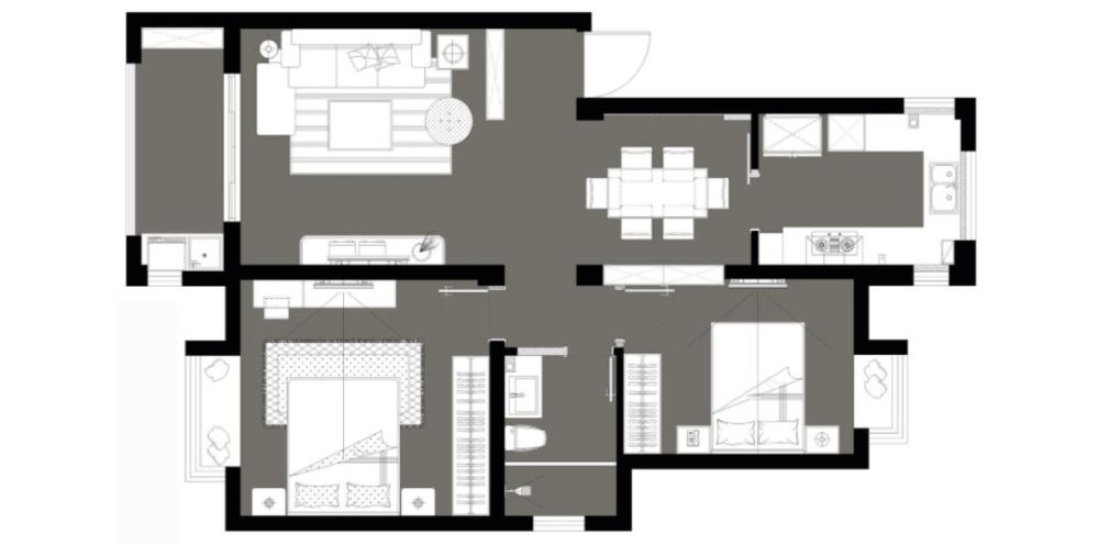
平面布置图
玄关
入户玄关,一进门就可以看到嵌入式的收纳柜设计,储物能力非常强大。柠檬黄的融入点亮了整个空间。底部留空,放放常穿的鞋子,非常方便。
进门右手边的墙面上,安装了不少的挂钩,挂挂包,挂挂围巾,挂挂外套,都是极为实用的。
玄关两边分别是客餐厅,利用长过道将两个空间独立开来,这种布局最是给力了!整个家在现代简约风格的基础上融入了不少暖色调,看起来十分温馨。
客厅
客厅背景墙大量留白,硬装设计还是较为简约的,看起来大大方方。深灰色皮质沙发,咖棕色的休闲椅,大理石茶几,一切都搭配得好时尚。
电视背景墙定制了组合式电视柜,以白色和木色为主,搭配一旁的绿植,显得非常的小清新。置物架上摆放些精致的装饰品,会让家显得很有品位。
客厅沙发区真是越看越觉得时尚。多彩的装饰画用六边形画框框定,个性又丰富了墙面空间。壁灯的设计也非常有创意,还挺有线条美的。
餐厅
餐厅打造了一整面的嵌入式收纳柜,再也不用担心家里大大小小的物品无处摆放了。柠檬黄的再次融入,让空间看起来真的好有活力呢。
餐桌椅都是比较时尚的风格,色调沉稳大气,非常有范儿。一下子可以坐下六个人,亲戚朋友来家做客都不用慌。还有镜面设计,起到了非常不错的扩容效果。
主卧
主卧整体搭配非常温馨,床品、装饰画、大衣柜都融入了比较优雅的配色,看起来特别漂亮!卧床背后,还有木质护墙板设计呢!
次卧
次卧和主卧是类似的搭配,不过看起来更为简约清新一些。整个空间因为连着阳台,所以采光特别好。卧床旁边还摆上了桌椅,当学习区,当梳妆台,都是挺实用的。
厨房
U型厨房整体设计非常时尚,仿爵士白瓷砖看起来还是很大气的!喜欢这种布局,把每个区域都划分得非常清晰,几个人一起忙活都不会觉得拥挤。
卫生间
卫生间配色时尚,洗漱区大圆镜很是吸晴,马桶后方的几何瓷砖也挺有特色。防水台和玻璃隔断把干湿分离做得也非常不错。

