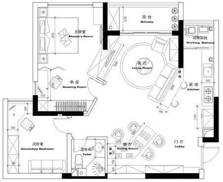
装修就是把房子装成自己想要的家,但是又不想那么千篇一律,又想有自己独特的个性。所以新房装修做了很大胆的尝试,别人都是想方设法把畸形户型改造方正,而我却是反过来,把方正户型改造成各种异型,效果确实可以。
使用面积71平,风格温馨舒适小清新,装修太漂亮,进门就被迷住了,装修一共花了20万,包含了屋内所有的东西,带大家参观下。
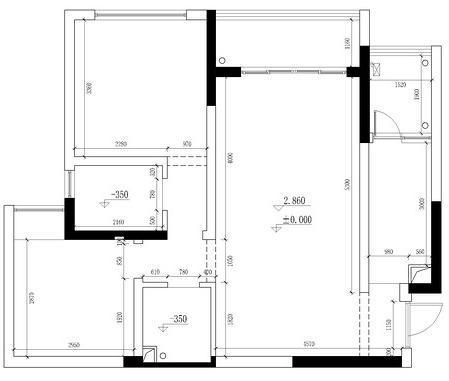
原始户型图,方方正正的,很多人都不明白为什么要改成各种异型,接着往下看就好了。
改造之后的效果,相比原先的方方正正,我更喜欢现在这个布局,很自由随性。
客厅文艺小清新,就是喜欢这种懒散自由的感觉,让人感到悠闲放松。空间设计上也安排的比较灵活,厨房做成半开放式的,吧台是隔断又是背景墙。
颜色以薄荷绿和原木色为主,温馨舒适小清新。装修简洁,不需要有过多的装饰,不仅好看清洁也方便。
客餐厅都采用无主动设计,吊顶很洋气,相比那些中规中矩的吊顶设计,我更喜欢现在的。
餐厅设计很特别,砖砌的桌台,搭配上原木桌面,时尚又特别。
卧室简装,色调都比较温馨舒适,因为空间比较大,因此买了个屏风隔了个小书房,很多朋友说屏风看着像以前的小诊所,哈哈!
小书房自带窗户,采光几乎不用担心,卧室采光就更不用说了,大大的窗户看着好喜欢。吊顶也设计的很特别。
暂时一个人住,所以次卧简装即可,当然正常功能是不能少的,整体风格还是需要保持统一的。
暂时一个人住,所以次卧简装即可,当然正常功能是不能少的,整体感觉还是要和家里的调子一致。
大爱的开放式厨房,特意买了大功率的油烟机,加上平时饮食也比较清淡,所以基本不担心。原木色的橱柜,越看越喜欢。
卫生间有点小,洁具安装之后有点小拥挤,很喜欢这款浴室柜,原木色配黑色,为了保证风格一致,特意挑了同一个色调的仿木砖,效果很赞。

