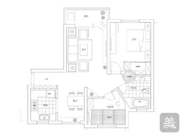
设计
这套只有84个平方的二居室,美观而又大方实用,合理的利用了每一个空间,满足一家三口的居住需求。
入户
入户就是一个狭长的玄关走道,靠厨房部分是嵌入式的鞋柜和壁龛的设计,美观又实用。
餐厅
软包和黑玻构造出的餐厅背景墙空间,让整个餐厅都显得非常时尚,边上整排的餐边柜,满足餐厅的收纳需求。
厨房
厨房的设计就是以简单和实用为主,颜色不复杂,但是显得非常温馨和舒适。
客厅
客厅简洁明亮,白色的沙发和白色的墙面相互辉映,吊顶上的灯带和射灯,营造出梦幻般的感觉。
主卧
客主卧用各种壁纸、床品的大花纹,构造出生活的气息,嵌入式的衣帽间设计,非常实用,整体感也更棒。
卫浴
以黑白配为主体的卫浴空间,带来的就是一种时尚的现代简约感觉,展现出业主的格调。

